Passenger elevator
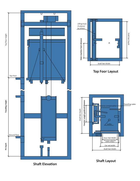
Passenger Elevator parameters (machine room)
| Load (Kg) |
Speed (m/s) |
Pers | Car Size (mm) CW×CD×HK |
Opening Size(mm) PL×LH |
Shaft Size(mm) SW×SD |
Machine Room Size(mm) W×D |
Overhead Hight H2 mm |
Pit Depth H1 mm |
Travelling Height H mm |
| 450 | 1 | 6 | 1250×1000×2400 | 700×2100 | 1750×1650 | 1900×2100 | 4300 | 1500 | 50 |
| 450 | 1.5 | 6 | 1250×1000×2400 | 700×2100 | 1750×1650 | 1900×2100 | 4400 | 1500 | 75 |
| 450 | 1.75 | 6 | 1250×1000×2400 | 700×2100 | 1750×1650 | 1900×2100 | 4400 | 1500 | 85 |
| 630 | 1 | 8 | 1100×1400×2400 | 800×2100 | 1800×2100 | 1900×2100 | 4300 | 1500 | 50 |
| 630 | 1.5 | 8 | 1100×1400×2400 | 800×2100 | 1800×2100 | 1900×2100 | 4400 | 1500 | 75 |
| 630 | 1.75 | 8 | 1100×1400×2400 | 800×2100 | 1800×2100 | 1900×2100 | 4400 | 1500 | 85 |
| 800 | 1 | 10 | 1350×1400×2400 | 800×2100 | 1900×2100 | 1900×2100 | 4300 | 1500 | 50 |
| 800 | 1.5 | 10 | 1350×1400×2400 | 800×2100 | 1900×2100 | 1900×2100 | 4400 | 1500 | 75 |
| 800 | 1.75 | 10 | 1350×1400×2400 | 800×2100 | 1900×2100 | 1900×2100 | 4400 | 1500 | 85 |
| 1000 | 1 | 13 | 1600×1400×2400 | 900×2100 | 2150×2100 | 2150×2100 | 4300 | 1500 | 50 |
| 1000 | 1.5 | 13 | 1600×1400×2400 | 900×2100 | 2150×2100 | 2150×2100 | 4400 | 1500 | 75 |
| 1000 | 1.75 | 13 | 1600×1400×2400 | 900×2100 | 2150×2100 | 2150×2100 | 4400 | 1500 | 85 |
| 1000 | 2 | 13 | 1600×1400×2400 | 900×2100 | 2150×2100 | 2150×3150 | 4600 | 1700 | 100 |
| 1000 | 2.5 | 13 | 1600×1400×2400 | 900×2100 | 2150×2100 | 2150×3150 | 4800 | 1800 | 125 |
| 1250 | 1 | 16 | 1950×1400×2400 | 1000×2100 | 2500×2100 | 2500×2100 | 4300 | 1500 | 50 |
| 1250 | 1.5 | 16 | 1950×1400×2400 | 1000×2100 | 2500×2100 | 2500×2100 | 4400 | 1500 | 75 |
| 1250 | 1.75 | 16 | 1950×1400×2400 | 1000×2100 | 2500×2100 | 2500×2100 | 4400 | 1500 | 85 |
| 1250 | 2 | 16 | 1950×1400×2400 | 1000×2100 | 2500×2100 | 2500×3150 | 4600 | 1700 | 100 |
| 1250 | 2.5 | 16 | 1950×1400×2400 | 1000×2100 | 2500×2100 | 2500×3150 | 4800 | 1800 | 125 |
| 1600 | 1 | 21 | 1950×1700×2400 | 1100×2100 | 2800×2200 | 2800×2200 | 4400 | 1500 | 50 |
| 1600 | 1.5 | 21 | 1950×1700×2400 | 1100×2100 | 2800×2200 | 2800×2200 | 4500 | 1600 | 75 |
| 1600 | 1.75 | 21 | 1950×1700×2400 | 1100×2100 | 2800×2200 | 2800×2200 | 4500 | 1600 | 85 |
| 1600 | 2 | 21 | 1950×1700×2400 | 1100×2100 | 2500×2450 | 2500×3500 | 4600 | 1700 | 100 |
| 1600 | 2.5 | 21 | 1950×1700×2400 | 1100×2100 | 2500×2450 | 2500×3500 | 4800 | 1800 | 125 |
Passenger Elevator parameters (machine room less)
| Load (Kg) |
Speed (m/s) |
Pers | Car Size (mm) CW×CD×HK |
Opening Size(mm) PL×LH |
Shaft Size(mm) SW×SD |
Overhead Hight H2 mm |
Pit Depth H1 mm |
Travelling Height H mm |
| 630 | 1 | 8 | 1250×1300×2400 | 800×2100 | 2100×1800 | 4300 | 1600 | 50 |
| 630 | 1.5 | 8 | 1250×1300×2400 | 800×2100 | 2100×1800 | 4500 | 1600 | 75 |
| 630 | 1.75 | 8 | 1250×1300×2400 | 800×2100 | 2100×1800 | 4600 | 1600 | 85 |
| 800 | 1 | 10 | 1350×1400×2400 | 800×2100 | 2200×1900 | 4300 | 1600 | 50 |
| 800 | 1.5 | 10 | 1350×1400×2400 | 800×2100 | 2200×1900 | 4500 | 1600 | 75 |
| 800 | 1.75 | 10 | 1350×1400×2400 | 800×2100 | 2200×1900 | 4600 | 1600 | 85 |
| 1000 | 1 | 13 | 1600×1400×2400 | 900×2100 | 2450×1900 | 4300 | 1600 | 50 |
| 1000 | 1.5 | 13 | 1600×1400×2400 | 900×2100 | 2450×1900 | 4500 | 1600 | 75 |
| 1000 | 1.75 | 13 | 1600×1400×2400 | 900×2100 | 2450×1900 | 4600 | 1600 | 85 |
| 1250 | 1 | 16 | 1750×1600×2400 | 1000×2100 | 2700×2000 | 4450 | 1600 | 50 |
| 1250 | 1.5 | 16 | 1750×1600×2400 | 1000×2100 | 2700×2000 | 4650 | 1600 | 75 |
| 1250 | 1.75 | 16 | 1750×1600×2400 | 1000×2100 | 2700×2000 | 4750 | 1600 | 85 |
| 1600 | 1 | 21 | 1750×2000×2400 | 1000×2100 | 2700×2400 | 4500 | 1700 | 50 |
| 1600 | 1.5 | 21 | 1750×2000×2400 | 1000×2100 | 2700×2400 | 4850 | 1800 | 75 |
| 1600 | 1.75 | 21 | 1750×2000×2400 | 1000×2100 | 2700×2400 | 4900 | 1800 | 85 |
Layout Plan



Hospital elevator
Parameters
| Load (Kg) |
Speed (m/s) |
Pers | Car Size (mm) CW×CD×HK |
Opening Size(mm) PL×LH |
Shaft Size(mm) SW×SD |
Machine Room Size(mm) W×D |
Overhead Hight H2 (mm) |
Pit Depth H1 (mm) |
Travelling Height H mm |
| 1000 | 1 | 13 | 1100×2100×2400 | 900×2100 | 2100×2500 | 2100×2500 | 4300 | 1500 | 50 |
| 1000 | 1.5 | 13 | 1100×2100×2400 | 900×2100 | 2100×2500 | 2100×2500 | 4400 | 1500 | 75 |
| 1000 | 1.75 | 13 | 1100×2100×2400 | 900×2100 | 2100×2500 | 2100×2500 | 4400 | 1500 | 85 |
| 1600 | 1 | 21 | 1400×2400×2400 | 1100×2100 | 2300×2850 | 2300×2850 | 4300 | 1500 | 50 |
| 1600 | 1.5 | 21 | 1400×2400×2400 | 1100×2100 | 2300×2850 | 2300×2850 | 4500 | 1500 | 75 |
| 1600 | 1.75 | 21 | 1400×2400×2400 | 1100×2100 | 2300×2850 | 2300×2850 | 4500 | 1500 | 85 |
| 2000 | 1 | 26 | 1600×2600×2400 | 1200×2100 | 2500×3050 | 2500×3050 | 4300 | 1500 | 50 |
Layout plan




Sightseeing elevator
Parameters
| Load (Kg) |
Speed (m/s) |
Pers | Car Size (mm) CW×CD×HK |
Opening Size(mm) PL×LH |
Shaft Size(mm) SW×SD |
Overhead Hight H2 mm |
Pit Depth H1 mm |
Travelling Height H mm |
| 630 | 1 | 8 | 1250×1300×2400 | 800×2100 | 2100×1800 | 4300 | 1600 | 50 |
| 630 | 1.5 | 8 | 1250×1300×2400 | 800×2100 | 2100×1800 | 4500 | 1600 | 75 |
| 630 | 1.75 | 8 | 1250×1300×2400 | 800×2100 | 2100×1800 | 4600 | 1600 | 85 |
| 800 | 1 | 10 | 1350×1400×2400 | 800×2100 | 2200×1900 | 4300 | 1600 | 50 |
| 800 | 1.5 | 10 | 1350×1400×2400 | 800×2100 | 2200×1900 | 4500 | 1600 | 75 |
| 800 | 1.75 | 10 | 1350×1400×2400 | 800×2100 | 2200×1900 | 4600 | 1600 | 85 |
| 1000 | 1 | 13 | 1600×1400×2400 | 900×2100 | 2450×1900 | 4300 | 1600 | 50 |
| 1000 | 1.5 | 13 | 1600×1400×2400 | 900×2100 | 2450×1900 | 4500 | 1600 | 75 |
| 1000 | 1.75 | 13 | 1600×1400×2400 | 900×2100 | 2450×1900 | 4600 | 1600 | 85 |
| 1250 | 1 | 16 | 1750×1600×2400 | 1000×2100 | 2700×2000 | 4450 | 1600 | 50 |
| 1250 | 1.5 | 16 | 1750×1600×2400 | 1000×2100 | 2700×2000 | 4650 | 1600 | 75 |
| 1250 | 1.75 | 16 | 1750×1600×2400 | 1000×2100 | 2700×2000 | 4750 | 1600 | 85 |
| 1600 | 1 | 21 | 1750×2000×2400 | 1000×2100 | 2700×2400 | 4500 | 1700 | 50 |
| 1600 | 1.5 | 21 | 1750×2000×2400 | 1000×2100 | 2700×2400 | 4850 | 1800 | 75 |
| 1600 | 1.75 | 21 | 1750×2000×2400 | 1000×2100 | 2700×2400 | 4900 | 1800 | 85 |
Layout Plan


Freight elevator
Parameters
| Load (Kg) |
Speed (m/s) |
Car Size (mm) CW×CD×HK |
Opening Size(mm) PL×LH |
Opening Type | Shaft Size(mm) SW×SD |
Overhead Hight H2 (mm) |
Pit Depth H1 (mm) |
| 1000 | 0.5 | 1400×1600×2200 | 1400×2200 | Center opening Four Panels | 2450×2000 | 4200 | 1450 |
| 1000 | 0.5 | 1400×1600×2200 | 1400×2200 | Four Panels Opposite Side | 2450×2070 | 4200 | 1450 |
| 2000 | 0.5 | 1800×2300×2200 | 1800×2200 | Center opening Four Panels | 3000×2700 | 4200 | 1450 |
| 2000 | 0.5 | 1800×2300×2200 | 1800×2200 | Four Panels Opposite Side | 3000×2770 | 4200 | 1450 |
| 3000 | 0.5 | 2200×2600×2200 | 2200×2200 | Center opening Four Panels | 3600×3000 | 4200 | 1450 |
| 3000 | 0.5 | 2200×2600×2200 | 2200×2200 | Four Panels Opposite Side | 3600×3070 | 4200 | 1450 |
| 4000 | 0.5 | 2400×2900×2200 | 2400×2200 | Center opening Four Panels | 3800×3370 | 4200 | 1450 |
| 4000 | 0.5 | 2400×2900×2200 | 2400×2200 | Four Panels Opposite Side | 3800×3370 | 4200 | 1450 |
| 5000 | 0.5 | 2500×3500×2200 | 2400×2200 | Center opening Four Panels | 4000×4000 | 4200 | 1450 |
| 5000 | 0.5 | 2500×3500×2200 | 2400×2200 | Four Panels Opposite Side | 4000×3970 | 4200 | 1450 |
Layout Plan




car elevator
Parameters
| Hydraulic Drive-TQY | |||||||||
|
Load |
Speed |
Car Size |
Door Size |
Shaft Size |
Pit |
Overhead |
Machine-Room |
||
|
Kg |
M/s |
mm |
mm |
mm |
mm |
mm |
mm |
||
|
W*D*H |
W*H |
W*D |
W*D*H |
||||||
|
2500 |
0.3 |
2400*5600*2200 |
2400*2200 |
4000*6200 |
1500 |
≥3800 |
1500 |
6200 |
2000 |
|
3000 |
0.3 |
2500*6000*2200 |
2500*2200 |
4200*6600 |
1500 |
≥4000 |
6600 |
||
|
5000 |
0.3 |
2700*6500*2200 |
2700*2200 |
4500*7100 |
1500 |
≥4000 |
7100 |
||
|
|
|||||||||
| Traction Drive-TQJ | |||||||||
|
Load |
Speed |
Car Size |
Door Size |
Shaft Size |
Pit |
Overhead |
Machine-Room |
||
|
Kg |
M/s |
mm |
mm |
mm |
mm |
mm |
mm |
||
|
W*D*H |
W*H |
W*D |
W*D*H |
||||||
|
2500 |
0.5 |
2400*5600*2200 |
2400*2200 |
4000*6200 |
1500 |
≥4500 |
4000*6200*2500 |
||
|
3000 |
0.5 |
2500*6000*2200 |
2500*2200 |
4200*6600 |
1500 |
≥4500 |
4200*6600*2500 |
||
|
5000 |
0.25-0.5 |
2700*6500*2200 |
2700*2200 |
4500*7100 |
1500 |
≥4500 |
4500*7100*2500 |
||

Home lift
parameters
| Load (Kg) |
Speed m/s |
Pers | Car Size (mm) CW×CD×HK |
Opening Size(mm) PL×LH |
Shaft Size(mm) SW×SD |
Overhead Hight H2 (mm) |
Pit Depth H1 (mm) |
Travelling Height H (mm) |
| 320 | 0.4 | 4 | 900×1200×2150 | 700×2000 | 1600×1500 | 3300 | 900 | 12 |
| 320 | 0.4 | 4 | 900×1200×2150 | 800×2000 | 1600×1550 | 3300 | 900 | 12 |
| 400 | 0.4 | 5 | 900×1200×2150 | 700×2000 | 1600×1500 | 3300 | 900 | 12 |
| 400 | 0.4 | 5 | 900×1200×2150 | 800×2000 | 1600×1550 | 3300 | 900 | 12 |
Layout Plan

